Notes on Seneca Quarry & Stonecutting Mill
Reference in C&O Canal Companion: Mile 22.8
|
Detail
from map of Seneca area prepared by |
Additional NotesThe sandstone quarry is located on C&O Canal turning basin, but stone was quarried here long before the canal was built. In fact, quarrying had begun even before the American Revolution. During the 1790s, stone from this quarry was boated down the Potomac through the Seneca skirting canal to the locks under construction at Great Falls and Little Falls. The quarry was owned by the Peter family, who lived in Georgetown during the winter months and were close friends of George Washington. During the construction of the Federal City in the 1790s, George Washington was an occasional overnight guest at the home of Thomas Peter in Georgetown. (Thomas Peter married Martha Washington?s granddaughter.) The quarry?s proximity to the canal made it an obvious source of stone when construction began on the lower sections of the canal in 1828. However, the canal company first had to negotiate with John P.C. Peter to obtain land for the aqueduct on the west bank of Seneca Creek. A series of court decisions finally resulted in a payment of $2,143.50, which included rights for the company to quarry 20,000 cubic yards of materials from the adjacent land owned by Peter (the sandstone quarry at Seneca). Under the agreement, the canal company had 27 months to quarry the stone, and apparently made good use of the opportunity: the aqueduct over Seneca Creek and Locks 15-26 are largely constructed of the distinctive reddish stone from Seneca. In 1837 a sawmill was erected near the quarry, using water power from the canal basin to drive eight-foot long band saws that could cut one inch of stone per hour. Stone was brought from the quarry to the sawmill on a narrow-gauge track. The sawmill also cut stone from upstream quarries on Goose Creek (Loudoun County) and Whites Ferry. The mill was probably first powered by a water wheel, which was supplanted by a more advanced turbine. The National Park Service?s illustration of the sawmill (pages 68-69 of the Park Handbook) suggests that water was brought from the canal turning basin into the back of the building by a wooden trough. The water then ran from the sawmill into Seneca Creek.
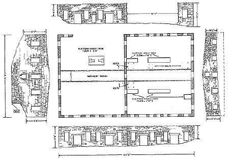
Plan
of Seneca stonecutting mill When construction began on the Smithsonian ?castle? building in 1847, Seneca sandstone was selected by the Building Committee because of its resistance to weathering as determined by chemical testing. (See the report below.)
As the better-quality stone was eventually depleted, the quarry closed for the last time in 1900. The red sandstone walls of the stonecutting mill still stand near the canal turning basin.
|
Documents
|
|
Text excerpted from the Appendix to Hints on Public Architecture, by Robert Dale Owen , published by George P. Putnam, New York, 1849 [Robert Dale Owen was a Congressman and Chairman of the Building Committee of the Smithsonian Institution.] Photos of Smithsonian Castle building by M High. |




