Saigon
Saigon is familiar to me from my childhood days. It is where I began my grade school education (1959-64), after a year in a small French kindergarten. My father was a specialist in vocational education, having started his career as a shop teacher in Raleigh, North Carolina. He worked in the Philippines for several years (Manila is my birthplace), went on to get his doctorate at Stanford University, and came to Saigon to work with the Ministry of Education in developing training programs, acquiring equipment, and sending prospective teachers to American colleges.
My mother, who was born and raised near Zurich, had perfectly acclimated herself to the tropics, and had already become fascinated with the culture of Chinese trading communities during her years working at the Swiss Consulate in Manila. So, many of her forays were into Chợ Lớn, the “Big Market,” to shop for exotic pieces of furniture.
She preferred to go to Chợ Lớn without the encumbrance of a child, but she did bring me along to the great temple of Lê Văn Duyệt and the temple of the Jade Emperor (Ngóc Hoàng). I’m afraid that I didn’t appreciate being dragged to incense-filled halls where visitors bowed to mysterious figures. But now, years later, Lăng Lê Văn Duyệt and Điện Ngọc Hoàng have become touchstones on my every time I go back to Saigon.
The Tomb of Lê Văn Duyệt (Lăng Lê Văn Duyệt)

As it turned out, all I needed was a proper introduction, and once I began to explore the history of Saigon in depth, I began to see why Lê Văn Duyệt came to be seen as a protective spirit. Duyệt was a military commander in the service of the exiled prince Nguyễn Ánh during the period of the Tây Sơn wars, helping him to win back the family’s throne in 1801. In the next year, Lê Văn Duyệt led the Nguyễn army into Hanoi, completing the union of the three regions of Vietnam. Nguyễn Ánh proclaimed himself Emperor Gia Long and reigned for eighteen years until his death. Lê Văn Duyệt was a roving pacification commander for most of that time, quelling regional uprisings in the north and central provinces and , But the second emperor, Minh Mạng, seems to have wanted to remove him from influence at Huế, and so appointed him governor of the southern region in 1820.
This was not really an indignity, as Duyệt was initially allowed a free hand to rule as a viceroy from the great citadel that Nguyễn Ánh had constructed in Saigon. We have vivid first hand impressions of Duyệt in Saigon from John Crawfurd and John Finlayson, who made an official visit to Saigon in 1821 on behalf of the British governor-general in India. (Shortly afterwards, Crawfurd was appointed administrator of the newly-established colony of Singapore; he went on to become a noted authority on Indonesia and one of the leading Orientalists of his time.)
Relying on imperial records and the testimony of French missionaries, Choi Byung Wook describes Lê Văn Duyệt as a defender of the heterodox communities—Christians, Chinese merchants, and exiled northerners—that played such an important role in the development of Gia Định. (In this time, Gia Định referred not only to region around Saigon, but to the whole of southern provinces, including the Mekong Delta.) This was a difficult task, given the emperor Minh Mạng’s determination to bring the south of Vietnam into alignment with Sino-Vietnamese imperial forms. (See Southern Vietnam under the Reign of Minh Mang (1820–1841): Central Policies and Local Response, Cornell University Press)

Minh Mạng began appointing his own classically-trained officials to serve in the south, and after Duyệt died in 1732, they began a purge of his supporters. The imprisonment of Duyệt’s adopted son, Lê Văn Khôi, triggered a massive rebellion by the “old guard” of Gia Định. Sprung from prison, Lê Văn Khôi was soon in control of Saigon-Gia Định and his followers had compelled the surrender of government officials throughout the Mekong delta and on the western coast. This rebellion was suppressed after an extended siege of the great citadel of Saigon, but the officials from Huế continued to face local resistance to Minh Mạng’s edicts. This struggle between southern norms and the official orthodoxies of the distant capital has obvious parallels to the post-1975 period, when Hanoi attempted to radically transform Saigon’s commercial operations.
Minh Mạng had ordered the destruction of Lê Văn Duyệt’s tomb, but his successor rehabilitated the great commander and a new modus vivendi emerged between the southerners and their governors. The French colonization of Cochinchina in the 1860s once again placed the local hero under a cloud of suspicion, but his adherents were able to get permission to enlarge the temple in 1937. But history has a way of repeating—although the temple fared very well after Saigon became the capital of the south (1955-1975), the subsequent government viewed Duyệt’s cult as both superstitious and a disturbing symbol of southern autonomy. As the government became more tolerant towards local folkways in the 1990s, though, Duyệt’s reputation was quietly restored. (Philip Taylor traces the vicissitudes of official disapproval and toleration in his classic study, Goddess on the Rise: Pilgrimage and Popular Religion in Vietnam, University of Hawaii Press, 2004).
Though I have a certain admiration for Lê Văn Duyệt, I don’t mean to romanticize him. He had a fierce temper, and had an abiding interest in cockfighting and ritual violence. He treated his British guests to one of the ceremonial tiger-elephant battles (in which the tiger was hobbled to ensure its demise at the tusks of the royal elephant). Having seen enough at that sitting, Crawfurd and his company declined Duyệt’s subsequent invitation to view the execution of several criminals by elephant. The elephant tusks and stuffed tiger on display at the temple are eloquent reminders that Duyệt compelled obedience much as Minh Mạng did. Given his greater tolerance for what we could call diversity, perhaps we can say that he employed his power for somewhat better ends.
Temple of the Jade Emperor (Điện Ngọc Hoàng)

The Jade Emperor temple in the early 1900s; French postcard.
Below: The temple in 2014 (Photo by M. High)

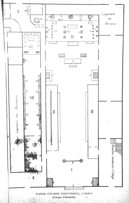
In contrast to the classic Chinese assembly halls (huigan / hội quán) of Chợ Lớn, the Jade Emperor temple is of surprisingly recent origin, being founded by a wealthy merchant from Canton (Guangdong). The temple is now run by the government-sponsored Buddhist association under the name Chùa Phước Hải (Pagoda of Blessed Seas), but its arrangement of altars is distinctly Taoist. I have spent a good deal of time trying to decipher the identities of the figures and the relationships between them. The best—perhaps only—reliable sources are two articles from the Bulletin Societé Etudes Indochinoises. Both articles provide floor plans with the locations of the altars and the names of the deities, and so we can confirm that there have been no changes to original layout. This is the temple plan, ca. 1914, in the article by Lelièvre and Clouqueur:

- “Pagode de Dakao,” A.E. Lelièvre and Ch. A. Clouqueur, Bulletin Societé Etudes Indochinoises, Bulletin No. 65, 2e semester, 1913.
- “La Pagode de l’Empereur de Jade à Dakao,” Vương Hồng Sển in Bulletin Societé Etudes Indochinoises, 1950
Doumu, the Dipper Mother
One thing that I have noticed is that the altar the left of the Jade Emperor (his left, not the viewer’s) has always been identified as that of Quan Âm (Kwanyin), the Buddhist bodhisattva who is venerated in popular tradition as a goddess of mercy. However, the statue’s attributes—including her three faces and discs representing the sun and the moon in her uppermost hands—are those of another deity known as Doumu (斗姆), the celestial “Dipper Mother.”

Versions of the Dipper Mother: Statue at Jade Emperor Temple; a modern rendering from Taiwan (Asian Civilisations Museum); Qing dynasty statue, ca. 1700-1800 (Asian Art Museum, San Francisco).
The Asian Civilisations Museum in Singapore provides the following description of Doumu:
The image of Doumu (also known as Mother of Stars of the Northern Dipper) is one of multiple eyes, heads and, arms, holding various attributes such as the sun and moon discs. This signifies her function as a constellation deity, controlling the forces of yin and yang, determining one’s personal destiny. Her unique manifestation sets her apart from other Daoist gods dressed in bureaucratic garb. Her image bears striking resemblance to Tantric Buddhist bodhisattvas and is derived from a specific Buddhist deva, Marichi.
Doumu’s role in the Taoist cosmos is related to other figures in the Jade Emperor temple, such as Thái Tuế (T’ai Sui 大歳, commonly translated as “Grand Year”), and so it is useful to think of the altar in that context. It is not unusual for Taoist and Buddhist sites to share certain deities, and sometimes Chinese deities were given alternate identities to avoid sectarian persecution.
According to the scholar Livia Kohn, the Yuan emperor banned Taoists texts around 1281, but the Dipper Mother reappeared in texts that identified her as the Buddhist goddess Marici, “giving Daoist belief a Buddhist cover."
Livia Khon, “Doumu, the Mother of the Dipper,” published in the journal Ming Qing Yanjiu, Volume 9: Issue 1, 2000. “The figure of the Mother of the Dipper then testifies once again to the intense and continued close interaction of Buddhist and Daoist materials, which can be observed from the fifth century onward and does not cease even in the Ming dynasty. It is fostered by proscriptions and government policies, but they alone do not explain its pervasiveness. It rather seems that, as in the middle ages so in later years, the most efficacious deities were worshiped by believers of all traditions, venerated more for their powers and their celestial stature than for their rank in one or the other religious school.”
“The figure of the Mother of the Dipper then testifies once again to the intense and continued close interaction of Buddhist and Daoist materials, which can be observed from the fifth century onward and does not cease even in the Ming dynasty. It is fostered by proscriptions and government policies, but they alone do not explain its pervasiveness. It rather seems that, as in the middle ages so in later years, the most efficacious deities were worshiped by believers of all traditions, venerated more for their powers and their celestial stature than for their rank in one or the other religious school.”
This historical background is but a footnote to the altar in the Jade Emperor temple. If you ask one of the monks at the temple, he will assure you that the statue is the 18-armed Buddhist goddess Quan Âm Chuẩn Đề; if you point out the attributes of Doumu, the answer gets more complicated, but will still end up as Quan Âm. As Livia Kohn goes on to explain, the double identity of Doumu / Marici does not pose a significant problem when it comes to worship.
“The Doumu jing, then, when chanted with the proper purification and in the proper ritual setting, regardless of the religious affiliation of its practitioner, has the same powers, bringing the unlimited goodness and primordial potentiality of the Dao and of Buddha to humanity. The Dipper Mother, both shakti to the Buddha as Marici and mother of the Dao as Doumu, emerges as a potent and ever present goddess, a supporting and saving mother to all.”
The Ten Courts of the Hell Kings 十殿閻王
There are many other fascinating figures in the Jade Emperor temple, to be discussed in my book, but I would like to call special attention to the images of the “Ten Courts of the Hell Kings” (Thập Điện Diêm Vương) in the side-hall.

These panels have always fascinated me in their originality, complexity, and even harmony, and I have no hesitation in calling them the finest examples of the Hell Kings in the whole of Vietnam. I would say this even in comparison to the northern versions that Simon Redington used for his series of woodblocks representing the Ten Kings. (I had the opportunity to meet Simon and give my compliments while visiting Hanoi.)
One important point about the Ten Courts of the underworld is that the different courts are not fixed destinations, as in the rings of Dante’s Hell. The dead souls pass through each of them on their way to reincarnation. The terms are fixed: one week in each of the first seven courts (accounting for the ritual “49 days”), then 100 days in the eighth court, one year in the ninth court, and three years in the tenth court.
This strict calendar dates back to the first text of the Ten Kings, found in the Dunhuang caves and dated to the 10th century CE. (Stephen F. Teiser has translated these documents and published them along with his analysis—see The Scripture of the Ten Kings and the Making of Purgatory in Medieval Chinese Buddhism, University of Hawaii Press, 1994. For a study of Ming-era Ten Kings paintings, see Efficacious Underworld: The Evolution of Ten Kings Paintings in Medieval China and Korea, Cheeyun Lilian Kwon, University of Hawaii Press, 2019.)

The original scripture describes a procession from court to court, with revelations at each stage, but does not specify particular sins and their punishments. In its inception, the Taoist-Buddhist afterlife is suffused with fear and trembling, with devils poking and prodding the dead souls along their journey, but without exotic tortures. In contrast, the Jade Emperor temple depicts categories of sinners and their condign punishments in gruesome detail. (Both BSEI articles describe these in detail.)
The idea of a taxonomy of sins seems to be a relatively recent modification in the Ten Kings tradition—possibly derived from the universally popular Christian vision of Hell as a place of chastisement. So far, I have not been able to identify the entry-point of this idea of a “differentiated” afterlife (Bart D. Ehrman’s term) in which punishments match the crime, but it is common enough in Southeast Asia, from the Tiger Balm Gardens in Singapore and Hong Kong to the weathered tapestries I once saw hanging in a temple in Bali.
The carvings at the Jade Emperor temple contain other elements that balance the fire-and-brimstone imagery—if you look closely, you will see the meritorious souls who are untouched by the mayhem around them. In this detail from the panel of the Fourth King, we see a merchant who starched his fabrics to deceive the customers being pounded by a rice pestle like the one he had used to fix starch on the fabrics. At the same time, a trio of virtuous souls cluster together to enjoy their rewards. (According to Vương Hồng Sển, this court provides special dispensation to charitable people who have donated coffins to the poor.)
Thus, in contrast to Dante, we find the innocent in the midst of the guilty at each stage of the afterlife, and we may consider the possibility that their respective roles might change in each court. This is certainly a subject worth further study.

- Saigon, Trois Siecles de Developpement Urbaine, Le Quang Ninh with Stephane Dovert, Nha Xuat Ban Tong Hop, TP HCM, 2003. Handsomely illustrated, with text in French and Vietnamese.
- Exploring Hồ Chí Minh City, Tim Doling, Thệ Giới Publshers, 2014. A very detailed guide to the city’s landmarks. Thệ Giới is the government publishing house, so it omits any observations that might conflict with the official narrative. (In the case of the museum to Tôn Đức Thắng, for instance, he repeats several tales about Thắng that have been disproven by Christopher Giebel—see Imagined Ancestries of Vietnamese Communism, 2004.)
- Sài Gòn Năm Xưa (Saigon of Yesteryear), Vương Hồng Sển, first two volumes published in 1960. Vương Hồng Sển’s life (1902-1996) bridged the colonial, republican, and postwar eras in Saigon. I have already cited his article on the Jade Emperor temple; his ceramics collection has its own room in Saigon’s National History Museum. Although he was born in the province of Sóc Trăng in the Mekong delta (of Khmer, Teochew, and Vietnamese ancestry), he became a Saigonese through and through.
- Luxury and Rubble: Civility and Dispossession in the New Saigon, Erik Harms, University of California Press, 2016. This illuminating study is happily available for free in ebook format. In it, Harms discusses the “double-edged” story of master-planned urban developments in the “new Saigon,” in which neoliberal economics mingles with illiberal politics and free-market expansion.
- Passion, Betrayal, and Revolution in Colonial Saigon: The Memoirs of Bao Luong, Hue-Tam Ho Tai, University of California Press, 2010. An illuminating account of the sensational “Rue Barbier” incident—a botched internal assassination in 1928 that enabled the colonial police to round up most of the members of the Revolutionary Youth League, thus bringing an end to the initial Communist effort to build a resistance movement in Saigon.
- Down and Out in Saigon: Stories of the Poor in a Colonial City, Haydon Cherry, Yale University Press, 2019. Echoing George Orwell’s Down and Out in Paris and London, Haydon Cherry looks at colonial Saigon from the viewpoint of its underclass. His case studies include a prostitute, a Chinese laborer, a rickshaw puller, an orphan, an incurable invalid, and a destitute Frenchman.
- The Saigon Sisters: Privileged Women in the Resistance, by Patricia D. Norland, Northern Illinois University Press, 2020. In some ways, this could be read as a sequel to Hue-Tam Ho Tai’s book, following a later generation of revolutionary women in Saigon.
- Saigon: A History, Nghia M. Vo, McFarland & Company, 2011. A servicable introduction to the city’s history, though the second half of the book becomes more of a polemical treatment of the “American war” from the Republican perspective (i.e. the “Saigon regime” of 1955-1975).
- From Saigon to Ho Chi Minh City: A Path of 300 Years, edited by Nguyện Khắc Viện and Hữu Ngọc. Thệ Giới Publshers, 1998. A collection of essays compiled by the distinguished historian and long-time editor of Vietnamese Studies, along with the writer Hữu Ngọc. Published by the government publishing house in Hanoi and thus conforming to the state-sanctioned narrative of southern history, this a distinctly different view than that of Nghia Vo.
- The Bulletin de la Société des études indo-chinoises de Saigon, which began publication in 1883 and ceased in 1975, is a treasure trove of French-language research by eminent scholars such as Louis Malleret.
- Giac Lam Pagoda, A Historical and Cultural Site, Tran Hong Lien, Social Sciences Publishing House, Hanoi, 2003 (Chùa Giác Lâm: Di Tích Lịch Sử Văn Hóa). A difficult translation to read, but full of detailed information about the history and iconography of the oldest surviving pagoda in Saigon.
- “Representing the Past in Vietnamese Museums,” Hue-Tam Ho Tai in Curator, The Museum Journal, Volume 41/3, September 1998. Back issues of Curator are available from Altamir Press. Discusses the treatment of history in the national museums, particularly the museum in Ho Chi Minh City, with interesting observations about the problems of incorporating the histories of the Khmer and Chinese in the south.